Ricerca

Appartamento in Vendita a Sulmona

107 mq 1 Bagni 2 Camere
 
Classe energetica  F  EP glnr: 175.00 kwh/m²

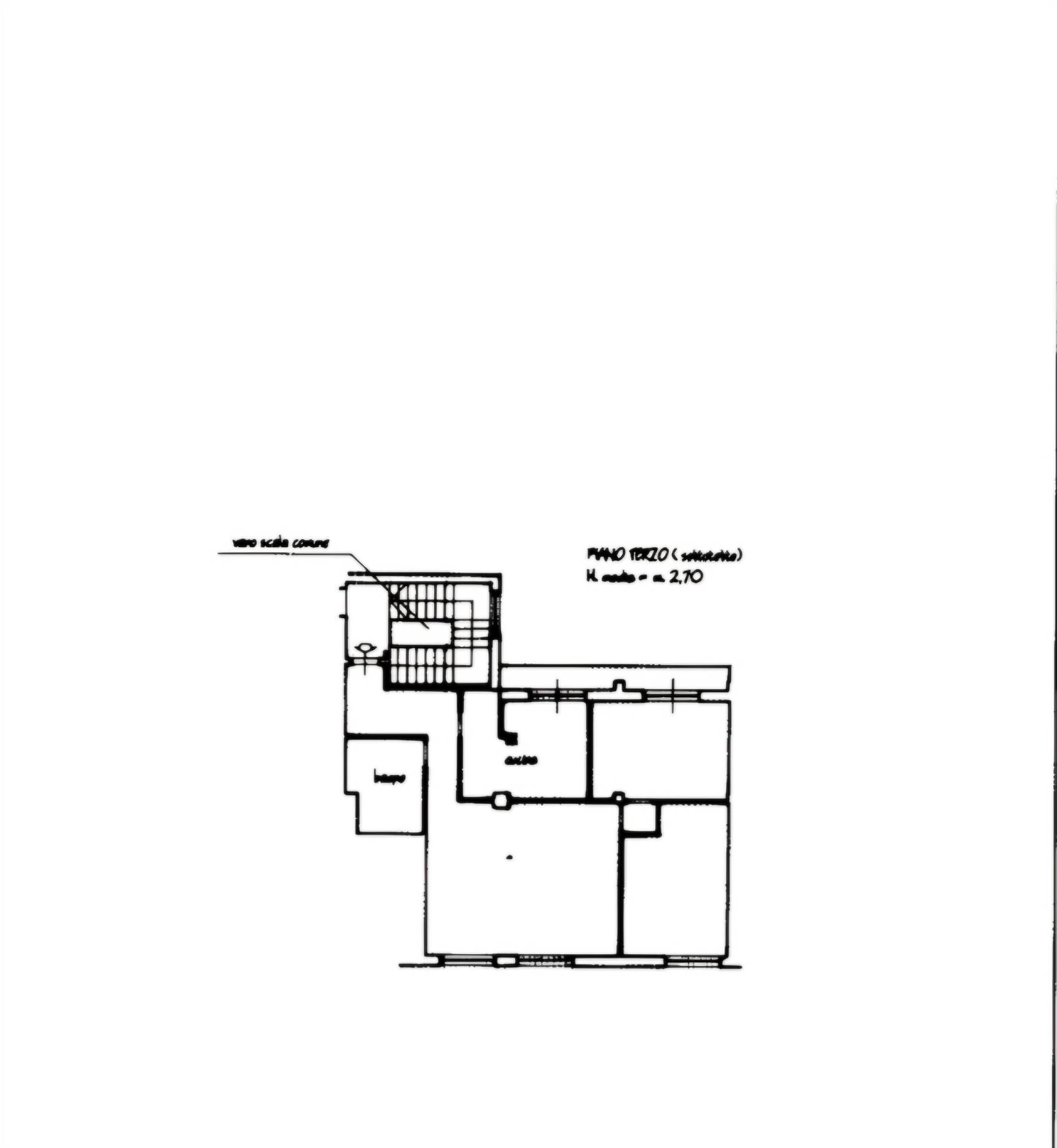
Real propone in Vendita a Sulmona Appartamento che si trova all'ultimo piano di un edificio di tre piani, gode di una posizione privilegiata che offre una splendida vista sulla città e sulle montagne circostanti.

Con una superficie totale di 107 metri quadrati, si compone di quattro luminosi locali, tra cui due camere da letto e un bagno completo di ogni comfort.

Lo stato di conservazione è buono e l'Appartamento viene venduto non arredato, dando così la possibilità di personalizzare gli spazi secondo le proprie esigenze e gusti. La zona giorno è composta da un ampio e luminoso soggiorno, che si affaccia su un balcone perfetto per godere di momenti di relax all'aria aperta.

La cucina, di tipo angolare, è funzionale e ben organizzata, garantendo un'adeguata zona di lavoro e di cottura.

Le camere da letto sono spaziose e accoglienti, progettate per garantire il massimo del comfort e della privacy.

L'Appartamento dispone di un sistema di riscaldamento autonomo a metano, che permette di gestire in modo indipendente i consumi e le temperature all'interno dell'abitazione. L'ambiente è riscaldato mediante un efficiente impianto a radiatori o pannelli radianti alimentato a metano, che garantisce un caldo e confortevole comfort in ogni stagione.

Inoltre, la presenza di un balcone permette di godere di un'ottima ventilazione naturale e di una piacevole vista panoramica.

La posizione al piano attico, inoltre, garantisce un'ottima privacy e silenziosità, lontano dai rumori del traffico cittadino. In conclusione, l'Appartamento in Vendita a Sulmona è la soluzione ideale per chi cerca una casa confortevole e luminosa, in una zona residenziale tranquilla e ben servita dai mezzi pubblici.

Grazie alle sue caratteristiche, è adatto sia a chi cerca una prima casa sia a chi desidera un'abitazione per le vacanze, immersa nella bellezza naturale dell'Abruzzo e a pochi passi dal centro storico di Sulmona.

Non esitate a contattarci per maggiori informazioni o per prenotare un appuntamento per visitare l’immobile. REAL è un progetto di Sara Di Censo Realtor e il Trovacasa. Vi aspettiamo nei nostri uffici a Sulmona in Viale Roosevelt 3 o a Pescara in Via Tommaso da Celano n. 10. Ricordate di prenotare un appuntamento per accedere agli uffici.

Le informazioni contenute nell’annuncio non costituiscono elemento contrattuale.

Codice: TR511
€ 50.000
Informazioni immobile
Codice: TR511
Contratto: Vendita
Tipologia: Appartamento
Regione: Abruzzo
Provincia: L'Aquila
Comune: Sulmona
Prezzo: € 50.000
Totale mq: 107 mq
Camere: 2
Bagni: 1
Locali: 3
Stato conservazione: Buono
Piano: Attico
Piani totali: 3
Riscaldamento: Autonomo
Appartamenti Totali: 1
Stato attuale: Libero al rogito
Disponibile: Si
Balconi: Presente
Cucina: Angolo cottura
Arredato: Non arredato
Posizione: Semicentrale
Nelle vicinanze
Stazione Ferroviaria
Trasporti Pubblici
Bar




Mappa immobile


Contattaci

REAL - Real Estate Abruzzo Life

Telefono 086433271

Ultimo aggiornamento 09-03-2026